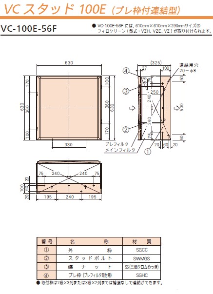
VCスタッド / フィロクリーン®専用の中性能フィルタ用取付枠 製品に関するお問い合わせ 製品に関するお問い合わせはこちら 型式 VC-100E グレード 中性能 種別 ケーシング 特長・強み 専用設計で高い適合性:フィロクリーン®型式VZ、VZE、VZHに対応した専用取付枠。 中性能フィルタ対応:中性能フィルタの取付に適した構造。 VCスタッド100E 詳細資料